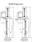
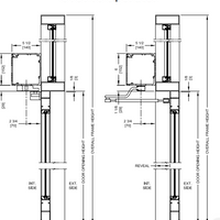
Nabco GT8710 Low Energy ADA Swing Door Operator - Up to 36" Door Widths, Up to 72" Opening Width, Pair Doors, Push Side Mounting
Nabco GT8710 Low Energy Commercial Automatic Door Opener comes in Clear Aluminum or Dark Bronze painted finish and has options for a single door or pair door use. The Nabco GT8710 is designed to automate nearly any new or existing door. The GT8710 operates in both automatic and manual modes with a hydraulic back-check that protects the door and mechanical operator from damage when forced open in windy conditions or when manually operated. The Low Energy performance, combined with adjustable opening and closing speeds, reduces energy usage to help offer a prompt return on your investment.
The Nabco GT8710 is approved for use on fire door assemblies rated up to 3 hours. It's engineered for interior and exterior use.

Nabco GT8710 & GT710 Order Form - Click Here